BLACKROCK, Co. Dublin

Completion: 2019

Contractor: Boris Sokolov

Structural Engineer: Donnelly Troy

Photography: Myles Shelly (unless noted otherwise)

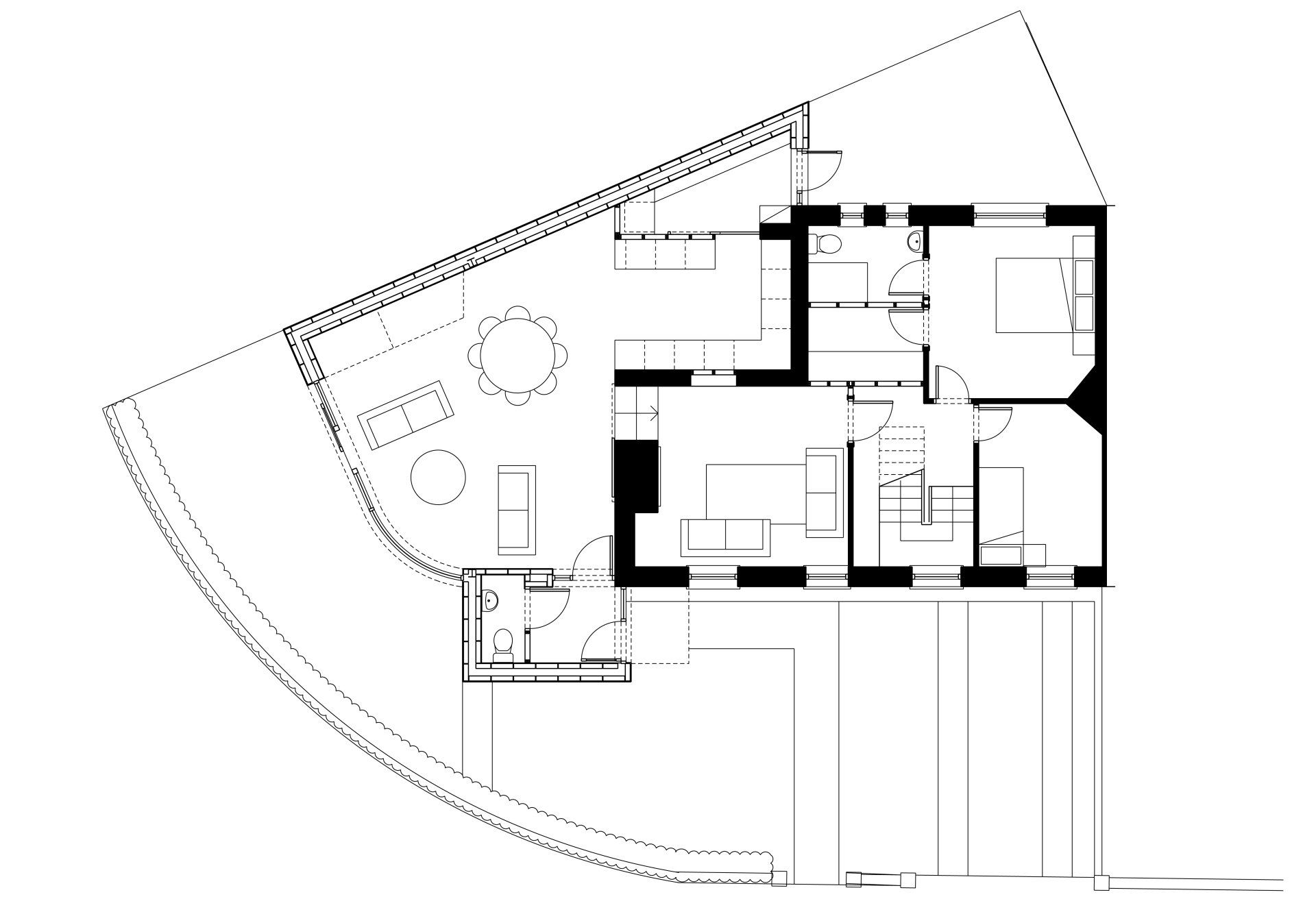
An awkwardly shaped and physically constrained site presented a challenge in the remodelling and extension of this 20th century cottage in Blackrock, Co. Dublin for a family of four.


A new living and dining area is created in a curved wedge shape to the west end of the house with a kitchen and utility room tucked into the rear of part of the existing cottage. The new extension connects through to the original living room taking advantage of a level change across the site.

Related Projects